‘We were thoroughly delighted with the finished garden after living with an inherited mish-mash of weeds and scrubby lawn. Nick and his crew worked very hard to deliver our vision of the garden and Nick was always available to bounce ideas off for changes and design tweaks. Nick’s attention to detail and getting things right shone through all his work and we have received numerous compliments from friends and neighbours. We now have a garden to enjoy and I would have no hesitation in recommending him for garden and landscape work‘
To start this project, we felled a medium cherry tree which was dominating the garden from the center of the lawn. Stump removal then arranged through Stumpbusters. We also cleared an old deck in the back left corner.
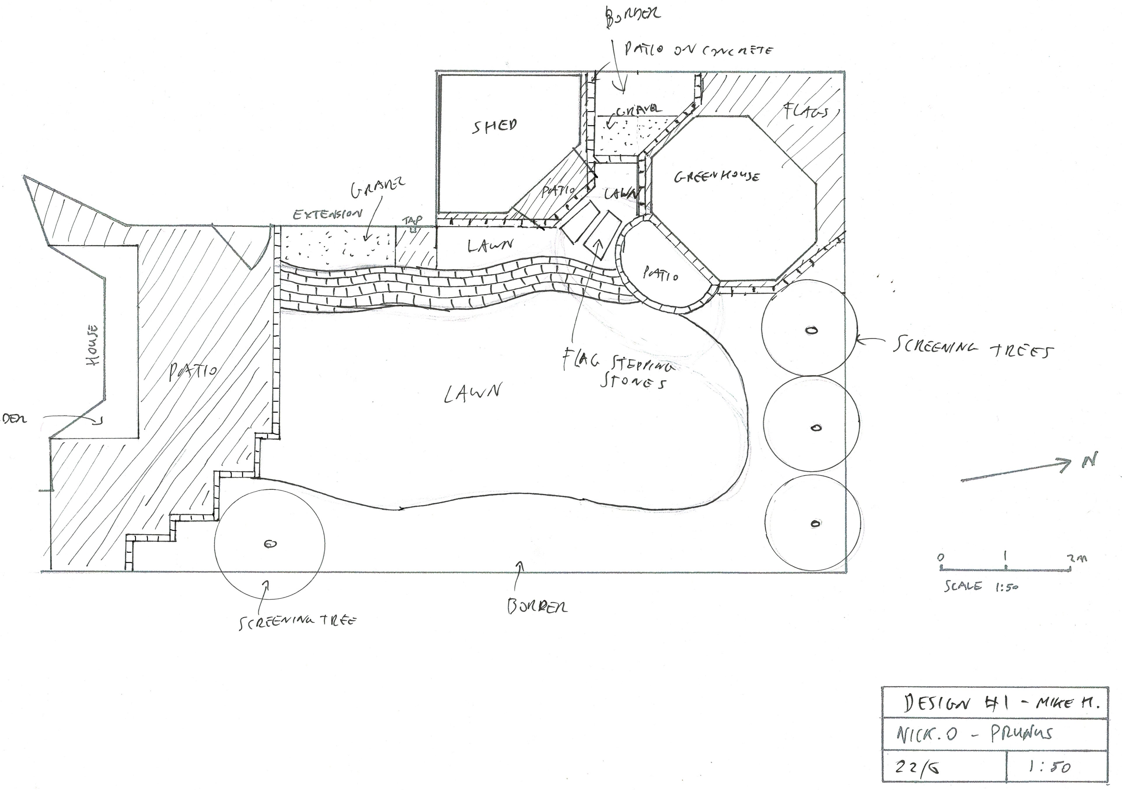
A previous design was evolved through a collaboration with the clients, featuring a block paving border edge, new central lawn, and an expanded patio constructed from Indian sandstone reclaimed from the neighbours front drive, again edged with block pavers, with an interesting central island border.
In the back corner of the garden an octagonal patio, built from high grade cast concrete flagstones, featuring a small D shaped patio with sandstone, block edging and white cobble infill. A second adjacent patio was built to host a corner shed.



















